THÔNG TIN CÔNG TRÌNH
- Chủ đầu tư: Chị YẾN
- Địa chỉ xây dựng: Bình Dương
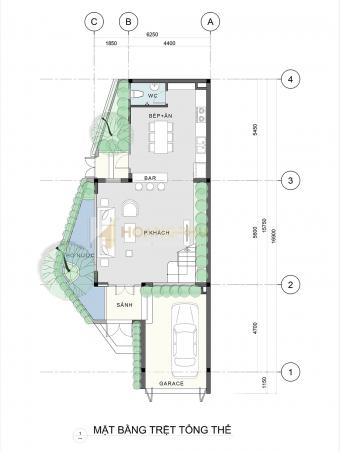
- Diện tích xây dựng: (5x12)m
- Quy mô: 1 Trệt, 2 Lầu
- Thiết kế và Xây dựng Trọn Gói: HOÀNG PHÚ
HOTLINE/ZALO: 0905 079 088 (Tư vấn 24/7)
Một căn nhà với nhiều ước mong của gia chủ. Nơi vun đắp hạnh phú. Mẫu nhà phố hiện đại này với diện tích sàn 60m2, 1 trệt 2 lầu, 3 phòng ngủ, 1 bếp, 1 P.Khách, Sân thượng tràn ngập hoa.
Mặt Tiền: Thiết kế hiện đại, với gam màu trắng chủ đạo, điểm nhấn là gạch trang trí giả gỗ, với những khung cửa kính rộng làm căn nhà thêm rộng, đủ ánh sáng và sang trọng.
Tầng Trệt: Được thiết kế liên thông tạo cảm giác rộng rãi thoáng mát, Cầu thang kính dọc nhà sẽ tiết kiệm được không gian.
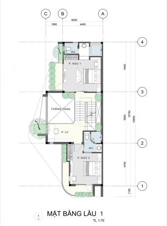
Tầng 1: Với 2 phòng ngủ, 1 nhà vệ sinh chung.
Tầng 2: Một phòng ngủ và khu giặt phơi tiện lợi.






































