THÔNG TIN DỰ ÁN
- Chủ đầu tư: Anh VŨ, Chị THUỶ
- Địa chỉ xây dựng: Kdc Bicosi, Dĩ An, Bình Dương
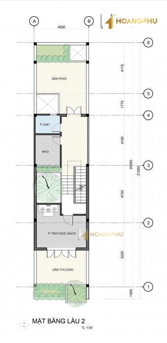
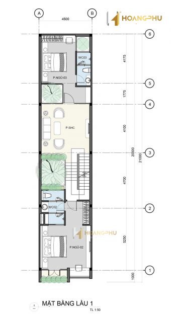
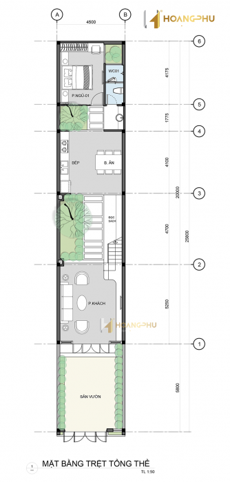
- Diện tích xây dựng: (4,5x21)m
- Quy mô xây dựng: 1 Trệt, 2 Lầu
+ Trệt: P.Khách, Bếp, P.Ngủ, Wc
+ Tầng 1: 2P.Ngủ, 2Wc
+ Tầng 2: P.Thờ, Sân thượng, Wc, Kho
- Thời gian hoàn thành: 06/2021
- Thiết kế và xây dựng Trọn Gói: HOÀNG PHÚ
Hotline/Zalo: 0905 079 088 (TƯ VẤN | Thiết kế & Xây nhà Trọn Gói)































