
Với diện tích quá nhỏ này, kiến trúc sư đã bố trí các không gian chức năng hết sức đơn giản nhưng đầy đủ, tiện nghi cho một gia đình trẻ gồm 3 thành viên.

Cận cảnh con ngõ hẹp. Từ ngõ nhìn vào sẽ thấy căn nhà được lược bỏ hết các chi tiết thừa thãi. Cửa gỗ nâu sáng, kết hợp cùng tường màu xám nhạt với ô cửa kính khiến căn nhà thoáng mát hơn.

Căn nhà được xây dọc theo con ngõ, khác hẳn với các kiểu nhà ống thường thấy.

Tầng trệt kết hợp phòng khách, nhà bếp và bàn ăn. Để các khu vực chức năng hoạt động linh hoạt và tối đa hóa không gian sử dụng, sàn được nâng lên để tạo ra một khoảng trống dưới sàn, làm nơi cất giữ đồ đạc.

Sàn nhà được tận dụng làm ghế ngồi, bàn ăn kiểu Nhật gắn trực tiếp vào sàn, khoảng trống bên dưới là chỗ để chân y như trong các nhà hàng lẩu nướng kiểu Hàn, Nhật.

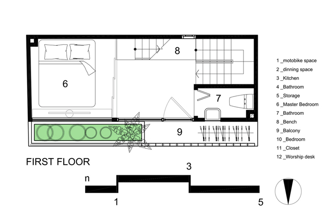
Tầng trên và một tầng lửng chứa 2 phòng ngủ cho cha mẹ và em bé.

Nội thất được thiết kế với mở giúp các phòng ngủ có ánh sáng tự nhiên từ giếng trời lớn và thông gió tốt nhờ các cửa sổ nhỏ ở các hướng.

Trông rất thoáng đãng và sáng sủa với ánh sáng điện thiết kế hợp lý, từ trong vẫn có thể quan sát được bên ngoài.

Dù nhỏ nhưng căn nhà vẫn có được không gian xanh nhờ những hộp cây từ ban công tầng trên.

Phần còn lại của ban công được giấu sau bức tường bê tông hình khối. Tấm màn che cứng này cho phép ánh sáng đi vào bên trong nhưng che khuất tầm nhìn từ hàng xóm lân cận.

Phòng ngủ được sử dụng cửa lùa tre để đảm bảo không gian riêng tư, vừa lịch sự vừa tiện lợi. Đồng thời, sàn phòng ngủ cũng được nâng để không gian dưới phục vụ việc lưu trữ. Tất cả những yếu tố chủ chốt này làm cho không gian ấm cúng dường như rộng hơn và nhẹ hơn.

Cầu thang kết hợp với chức năng như nhà kho.

Bản vẽ sơ đồ tầng 1

Bản vẽ sơ đồ tầng lửng

Bản vẽ sơ đồ tầng 2

Căn nhà nhỏ này đã được tạp chí kiến trúc Archdaily dành khá nhiều khen ngợi.

Bản vẽ mặt cắt dọc 1

Bản vẽ mặt cắt dọc 2
Nguồn Internet
Quý khách hàng có nhu cầu Thiết kế & Xây dựng nhà ở tại Quận 1, 2 ,3, 4, 5 , 6 , 7 ,8 ,9 10, 11,12, Tân Phú, Gò Vấp, Tân Bình, Bình Thạnh, Thủ Đức, Bình Tân, Củ Chi, Bình Chánh,.... khu vực TPHCM & CÁC TỈNH LÂN CẬN vui lòng liên hệ:
CÔNG TY THIẾT KẾ XÂY DỰNG TRANG TRÍ NỘI THẤT HOÀNG PHÚ
Địa chỉ: 185/28 Ngô Chí Quốc – P. Bình Chiểu – Q. Thủ Đức – Tp.HCM
Hotline/zalo: 0905 079 088
Email: hoangphudc@gmail.com
Website: www.hoangphu.com.vn


